FUN
La neve
www.defi-vacances.fr Code Promo : CM14
I tuoi preferiti

I preferiti sono i noleggi che hai messo tra i preferiti.
Per aggiungerne uno, clicca sulla casella grigia in alto a destra delle località.
Per rimuoverlo, clicca di nuovo sul cuore della stessa posizione, che sarà arancione.

Chiudere

Noleggio Appartamento "le 344" proche des stations de ski la clusaz, grand bornand

  • 48 m2

  • 4 persone

  • 25/11/2025

Chi siamo

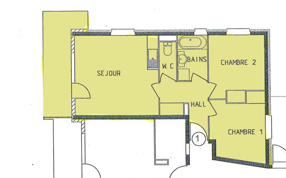
Appartamento di 48m2 in una piccola residenza situata nel centro di St Jean de Sixt, a meno di 3 minuti dalle stazioni sciistiche di La Clusaz e Grand-Bornand.

Appartamento con terrazza, esposto a sud-ovest.
- Soggiorno con cucina integrata (lavastoviglie, piano cottura, forno, microonde, frigo-congelatore, robot da cucina, macchina per caffè espresso, raclette e fonduta...),
- Soggiorno con un divano letto molto confortevole 160x190, Tv, lettore DVD, internet, libri, giochi, documentazione sulla regione...
- Camera da letto 1 con un letto 160X200
- Camera da letto 2 con due letti 90X200,
- Bagno, lavatrice, asciuga asciugamani, asciugacapelli,
- WC indipendente
- Parcheggio gratuito ai piedi della residenza
- Camera di sci

Situato a 250 metri dal centro del villaggio e dai negozi: mini-market, panetterie, farmacia, tabaccaio/stampa, negozi di sport... Fermata dell'autobus che porta alle stazioni sciistiche a 150 metri.

Attrezzature per bambini su richiesta: culla, vasca da bagno, seggiolone, passeggino a 3 ruote...


Caricamento dei risultati

Tariffe & Pianificazione di questo noleggio

(Data dell'ultimo aggiornamento : 25/11/2025)

Libero

Non disponibile

Promozione dell'ultimo minuto

Marzo
2026
Mon Mar Mare Gioco Ven Sam Dim
23 24 25 26 27 28
1
2
3
4
5
6
7
8
9
10
11
12
13
14
15
16
17
18
19
20
21
22
23
24
25
26
27
28
29
30
31
1 2 3 4 5
Tariffe per il settimana
  • 28/03 su 04/04
    530€ /7 notte(e)
Aprile
2026
Mon Mar Mare Gioco Ven Sam Dim
30 31
1
2
3
4
5
6
7
8
9
10
11
12
13
14
15
16
17
18
19
20
21
22
23
24
25
26
27
28
29
30
1 2 3
Tariffe per il settimana
  • 28/03 su 04/04
    530€ /7 notte(e)
  • 04/04 su 11/04
    530€ /7 notte(e)
  • 11/04 su 18/04
    530€ /7 notte(e)
  • 18/04 su 25/04
    530€ /7 notte(e)
  • 25/04 su 02/05
    530€ /7 notte(e)
Maggio
2026
Mon Mar Mare Gioco Ven Sam Dim
27 28 29 30
1
2
3
4
5
6
7
8
9
10
11
12
13
14
15
16
17
18
19
20
21
22
23
24
25
26
27
28
29
30
31
Tariffe per il settimana
  • 25/04 su 02/05
    530€ /7 notte(e)
  • 02/05 su 09/05
    530€ /7 notte(e)
  • 09/05 su 16/05
    530€ /7 notte(e)
  • 16/05 su 23/05
    530€ /7 notte(e)
  • 23/05 su 30/05
    530€ /7 notte(e)
  • 30/05 su 06/06
    530€ /7 notte(e)

Ulteriori informazioni

Orario di partenza alla fine del soggiorno : 10h00

Orario di arrivo all'inizio del vostro soggiorno : 16h00

Percentuale del deposito o dell'anticipo : 25%

Deposito / Cauzione : 300 €

Noleggio da domenica a domenica : Oui certaines semaines

Importo delle spese : Incluso

Tassa di soggiorno : In aggiunta Infos

Città : ST JEAN DE SIXT

Cancellazione

Politica di cancellazione : Please consult us for special covid 19 contions
Termini di cancellazione : 15 giorno/i

Housing

Tipo di alloggio : Appartamento
Superficie : 48 m²
Pavimento : Piano terra/Livello giardino
Capacità massima : 4
Capacità di comfort : 4
Camere : 2
Letto/i singolo/i : 2
Letto(i) matrimoniale(i) : 1
Divano(i) letto : 1
Bagno/i : 1 + info
Strutture sanitarie : 1 + info

Vantaggi

Giardino Giardino (Privato)
Riscaldamento autonomo Riscaldamento autonomo
Riscaldamento centralizzato Riscaldamento centralizzato
Locale sci Locale sci (Privato)
Terrazza Terrazza (Privato)
Ascensore Ascensore
+ Altri servizi
Camino Camino
Sauna/Idromassaggio/Bagno turco Sauna/Idromassaggio/Bagno turco
Stufa a legna Stufa a legna
Stufa a nafta Stufa a nafta
Garage Garage
Parco giochi per bambini Parco giochi per bambini
Parcheggio auto privato Parcheggio auto privato
Piscina Piscina
Riscaldamento a legna Riscaldamento a legna
Aria condizionata Aria condizionata
Balcone Balcone
cellar cellar
Stazione di ricarica Stazione di ricarica
Piscina riscaldata Piscina riscaldata

Servizi

Lenzuola Lenzuola
Asciugamani Asciugamani (5€)
Pulizie Pulizie (50€)
Holidays pack Holidays pack (70€)
(Privato)
+ Altri servizi
Prima colazione Prima colazione
Pranzo Pranzo
Cena Cena
Legna per camino Legna per camino
mezza pensione mezza pensione
Letti effettuati all'arrivo Letti effettuati all'arrivo
Disinfezione Disinfezione

Attrezzatura

Barbecue (Privato)
Forno
Lavatrice (Privato)
Lavastoviglie
Televisione (Privato)
Forno microonde
Internet WIFI (Privato)
Servizio per Raclette (Privato)
Servizio per Fonduta (Privato)
Congelatore
+ Altri servizi
Asciuga biancheria
Hi-Fi
Ricevitore satellitare
Radio
lavanderia

Altro

Riservato ai non fumatori Riservato ai non fumatori
+ Altri servizi
Si accettano animali domestici Si accettano animali domestici
Si accettano animali domestici di taglia (gatti o cani di piccola taglia) Si accettano animali domestici di taglia (gatti o cani di piccola taglia)
Accesso per persone con handicap motorio Accesso per persone con handicap motorio

Christine PERRILLAT

Tipo di proprietario : Affittuario privato
Registrato dal 12.02.2003

Questo noleggiatore parla :

Affittuario di fiducia

Buoni vacanza accettati


Individuare l'alloggio

Informazioni sulla stazione

Stazione principale: La Clusaz

Stazione di distanza : meno di 3 km
Distanza dagli ascensori : meno di 3 km
Per saperne di più : stazione La Clusaz

Area sciistica collegata


Dominio : Aravis ( La Clusaz , Le Grand Bornand , Manigod , Saint Jean De Sixt , )

Stazione secondaria: Le Grand Bornand

Stazione di distanza : meno di 3 km
Distanza dagli ascensori : meno di 3 km
Per saperne di più : stazione Le Grand Bornand

Area sciistica collegata


Dominio : Aravis ( La Clusaz , Le Grand Bornand , Manigod , Saint Jean De Sixt , )