FUN
Nieve
www.defi-vacances.fr Code Promo : CM14
Sus favoritos

Los favoritos son los alquileres que has marcado como favoritos.
Para añadir una, haga clic en el recuadro gris de la parte superior derecha de las ubicaciones.
Para eliminarlo, vuelva a hacer clic en el corazón del mismo lugar, que será de color naranja.

Cerrar

Alquiler Apartamento en chalet Aravis

  • 42 m2

  • 6 personas

  • 05/02/2026

Sobre nosotros

El edificio Aravis está situado en el centro de la estación, en el barrio de La Croisette.

El centro comercial está a 2 minutos y la estación de autobuses a 5 minutos a pie. Los remontes se encuentran a los pies del edificio con acceso directo en esquí. Frente al edificio se encuentran las pistas reservadas a los principiantes.
El club Pioupiou (guardería y jardín de nieve) se encuentra al otro lado de la Croisette y está a 10 minutos a pie.

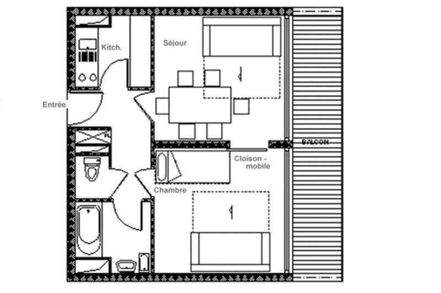
Se trata de un piso de 2 habitaciones con 1 dormitorio con una superficie total de 42m² para 6 personas. Se encuentra en la 6ª planta de una residencia de esquí, cerca de los remontes y del punto de salida de las FSE, y tiene un balcón orientado al sur.

Salón: 1 sofá cama para 2 personas.

Cocina equipada con 2 placas de cocción, 1 frigorífico, 1 lavavajillas 6 cubiertos + 1 horno combinado, tostadora, hervidor eléctrico y cafetera.

Habitación: 2 literas individuales + 1 cama extraíble para 2 personas. La cama alta no es adecuada para niños menores de 6 años.

Cuarto de baño con bañera, aseo separado.


Piso para no fumadores.
No se admiten animales de compañía.

Se proporcionan sábanas desechables de forma gratuita.
No se proporcionan toallas.
Estación WIFI (sujeta a la cobertura de la red).

Carga de resultados

Tarifas & Planificación de este alquiler

(Fecha de la última actualización : 05/02/2026)

Gratis

No disponible

Promoción de última hora

Febrero
2026
Mon Mar Mar Juego Vie Sam Dim
26 27 28 29 30 31
1
2
3
4
5
6
7
8
9
10
11
12
13
14
15
16
17
18
19
20
21
22
23
24
25
26
27
28
1
Marzo
2026
Mon Mar Mar Juego Vie Sam Dim
23 24 25 26 27 28
1
2
3
4
5
6
7
8
9
10
11
12
13
14
15
16
17
18
19
20
21
22
23
24
25
26
27
28
29
30
31
1 2 3 4 5
Abril
2026
Mon Mar Mar Juego Vie Sam Dim
30 31
1
2
3
4
5
6
7
8
9
10
11
12
13
14
15
16
17
18
19
20
21
22
23
24
25
26
27
28
29
30
1 2 3

Más información

Hora de salida al final de la estancia : 10h00

Hora de llegada al inicio de la estancia : 16h00

Depósito / Fianza : 400 €

Importe de los gastos : Incluye

Tasa turística : Además Infos

Ciudad : NC

Anulación

Política de cancelación : NC
Plazos de anulación : NC

Vivienda

Tipo de alojamiento : Apartamento en chalet
Superficie : 42 m²
Suelo : 6o
Capacidad máxima : 6
Habitaciones : 1
Cama(s) individual(es) : 4
Cama(s) doble(s) : 1
Sofá(s) cama :
Baño(s) : 1 + info
Instalaciones sanitarias : 1 + info

Beneficios

Balcón Balcón
+ Más servicios
Chimenea Chimenea
Sauna y/o jacuzzi y/o baño turco Sauna y/o jacuzzi y/o baño turco
Estufa de leña Estufa de leña
Estufa de gasoil Estufa de gasoil
Garaje Garaje
Juegos para niños Juegos para niños
Jardín Jardín
Parking privado Parking privado
Piscina Piscina
Calefacción eléctrica Calefacción eléctrica
Calefacción central Calefacción central
Calefacción de leña Calefacción de leña
Aire acondicionado Aire acondicionado
Guardaesquí Guardaesquí
Terraza Terraza
cava cava
Ascensor Ascensor
Estación de carga Estación de carga
Piscina temperada Piscina temperada

Servicios

+ Más servicios
Sábanas Sábanas
Toallas y mantelería Toallas y mantelería
 servicio limpieza servicio limpieza
Desayuno Desayuno
Comida Comida
Cena Cena
Leña para calefacción Leña para calefacción
media pensión media pensión
 Holidays pack Holidays pack
Camas hechas a la llegada Camas hechas a la llegada
Desinfección Desinfección

Equipo

Lavavajillas
Televisor
Internet WIFI
+ Más facilidades
Barbacoa
Horno
Lavadora
Microondas
Secadora de ropa
Equipo audio
Receptor de satélite
Raclette
Fondue
Radio
congelador
lavandería

Otros

+ Más servicios
Se aceptan mascotas Se aceptan mascotas
Se aceptan mascotas pequeñas (gatos y perros ) Se aceptan mascotas pequeñas (gatos y perros )
Alquiler no fumador Alquiler no fumador
Acceso para personas con movilidad reducida Acceso para personas con movilidad reducida

Lisa DES BELLEVILLE

Tipo de propietario : Agencia inmobiliaria
Registrado desde 25.09.2020

Este contratante habla :

Arrendatario de confianza

Vales de vacaciones rechazados


Localizar el alojamiento

Información de la estación

Estación principal: Les Menuires

Estación de distancia : NC
Distancia a los ascensores : cerca de
Más información : estación Les Menuires

Zona(s) de esquí vinculada(s)


Dominio : Les 3 Vallées ( Courchevel La Tania , Les Menuires , Méribel (centre) , Orelle , Saint Leger Les Melezes , Val Thorens , Brides les bains , Méribel Mottaret , Méribel Village , Méribel Les Allues , )