FUN
Nieve
www.defi-vacances.fr Code Promo : CM14
Sus favoritos

Los favoritos son los alquileres que has marcado como favoritos.
Para añadir una, haga clic en el recuadro gris de la parte superior derecha de las ubicaciones.
Para eliminarlo, vuelva a hacer clic en el corazón del mismo lugar, que será de color naranja.

Cerrar

Alquiler Apartamento en chalet Le chalet de garriba- appartement de la belette

  • 111 m2

  • 8 personas

  • 06/01/2026

Sobre nosotros

El piso de La Belette se encuentra en un chalet único, totalmente renovado, en el cruce de los dos torrentes que atraviesan Pralognan. A un paso de todas las comodidades, pasará momentos inolvidables con una magnífica vista de la montaña sin ningún tipo de oposición.

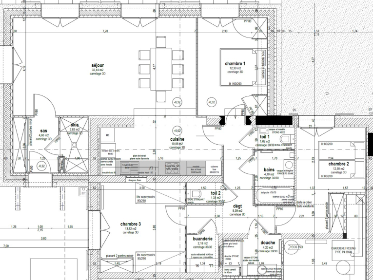
Nuestro piso es el resultado de una reciente renovación en la que el espacio y la calidad de la distribución han sido objeto de toda nuestra atención. Ha sido diseñado para que después de sus diversas actividades (esquí, senderismo, escalada, raquetas de nieve...) pueda disfrutar de verdaderos momentos de relax, sin preocuparse de las tareas de la casa... como en casa. No dude en mirar el plano del piso que se proporciona con las fotos, apreciará la distribución y la superficie de sus estancias. Tiene su propia entrada desde el resto del chalet.
Tiene un gran jardín privado junto al arroyo y todas las instalaciones son modernas, desde el gran televisor de pantalla curva y la barra de sonido, hasta el wifi, la máquina Nespresso y, por supuesto, la sala de esquí con secador de botas eléctrico, así como una sala de lavandería con lavadora y secadora. La madera y la piedra natural están presentes en todas partes y esperamos que disfrute de verdaderos momentos de relajación como nosotros lo hemos hecho al diseñar estos espacios. A sólo 50 metros del Vival, dirigido por sus amables y entusiastas propietarios, también está cerca de la primera tienda de alquiler de esquís, de la primera salida del remonte o del inicio de las pistas de esquí de fondo. La pista de patinaje olímpica y el complejo acuático no están lejos, así como el punto de llegada del autobús de enlace ....
Es probable que dejes el coche en su plaza de aparcamiento frente a la casa y no vuelvas a tocarlo durante tu estancia.


Estamos atentos a sus necesidades para satisfacerle mejor. No dude en ponerse en contacto con nosotros para obtener más información, estaremos encantados de proporcionársela.

Carga de resultados

Tarifas & Planificación de este alquiler

(Fecha de la última actualización : 06/01/2026)

Gratis

No disponible

Promoción de última hora

Febrero
2026
Mon Mar Mar Juego Vie Sam Dim
26 27 28 29 30 31
1
2
3
4
5
6
7
8
9
10
11
12
13
14
15
16
17
18
19
20
21
22
23
24
25
26
27
28
1
Las tarifas para el semana
  • 07/02 en 14/02
    2500€ /7 noche(s)
  • 28/02 en 07/03
    2500€ /7 noche(s)
Marzo
2026
Mon Mar Mar Juego Vie Sam Dim
23 24 25 26 27 28
1
2
3
4
5
6
7
8
9
10
11
12
13
14
15
16
17
18
19
20
21
22
23
24
25
26
27
28
29
30
31
1 2 3 4 5
Las tarifas para el semana
  • 28/02 en 07/03
    2500€ /7 noche(s)
Abril
2026
Mon Mar Mar Juego Vie Sam Dim
30 31
1
2
3
4
5
6
7
8
9
10
11
12
13
14
15
16
17
18
19
20
21
22
23
24
25
26
27
28
29
30
1 2 3
Las tarifas para el semana
  • 04/04 en 11/04
    2300€ /7 noche(s)
  • 11/04 en 18/04
    2300€ /7 noche(s)
  • 18/04 en 25/04
    2300€ /7 noche(s)
  • 25/04 en 02/05
    2300€ /7 noche(s)

Más información

Hora de salida al final de la estancia : 10h00

Hora de llegada al inicio de la estancia : 16h00

Porcentaje de la fianza o del anticipo : 35%

Depósito / Fianza : 500 €

Alquiler de domingo a domingo : Oui certaines semaines

Importe de los gastos : Incluye

Tasa turística : Además Infos

Ciudad : NC

Anulación

Política de cancelación : Cancellation not allowed, please take a private inssurance

Vivienda

Tipo de alojamiento : Apartamento en chalet
Superficie : 111 m²
Suelo : Planta baja / Una sola planta
Capacidad máxima : 8
Capacidad de confort : 8
Habitaciones : 3
Cama(s) individual(es) : 4
Cama(s) doble(s) : 2
Sofá(s) cama : 0
Baño(s) : 2 + info
Instalaciones sanitarias : 2 + info

Beneficios

Jardín Jardín (Privado)
Parking privado Parking privado (Privado)
Guardaesquí Guardaesquí (Privado)
Terraza Terraza (Privado)
+ Más servicios
Chimenea Chimenea
Sauna y/o jacuzzi y/o baño turco Sauna y/o jacuzzi y/o baño turco
Estufa de leña Estufa de leña
Estufa de gasoil Estufa de gasoil
Garaje Garaje
Juegos para niños Juegos para niños
Piscina Piscina
Calefacción eléctrica Calefacción eléctrica
Calefacción central Calefacción central
Calefacción de leña Calefacción de leña
Aire acondicionado Aire acondicionado
Balcón Balcón
cava cava
Ascensor Ascensor
Estación de carga Estación de carga
Piscina temperada Piscina temperada

Servicios

Sábanas Sábanas (Opcional:)
Toallas y mantelería Toallas y mantelería (Opcional:)
 servicio limpieza servicio limpieza (Opcional:)
 Holidays pack Holidays pack (Opcional:)
(Opcional:)
+ Más servicios
Desayuno Desayuno
Comida Comida
Cena Cena
Leña para calefacción Leña para calefacción
media pensión media pensión
Camas hechas a la llegada Camas hechas a la llegada
Desinfección Desinfección

Equipo

Horno
Lavadora (Privado)
Lavavajillas
Televisor (Privado)
Microondas
Secadora de ropa (Privado)
Internet WIFI (Privado)
Equipo audio (Privado)
Receptor de satélite (Privado)
Raclette (Privado)
Radio
congelador
+ Más facilidades
Barbacoa
Fondue
lavandería

Otros

Alquiler no fumador Alquiler no fumador (Obligatorio)
+ Más servicios
Se aceptan mascotas Se aceptan mascotas
Se aceptan mascotas pequeñas (gatos y perros ) Se aceptan mascotas pequeñas (gatos y perros )
Acceso para personas con movilidad reducida Acceso para personas con movilidad reducida

Cecile ANGELY

Tipo de propietario : Arrendatario privado
Registrado desde 21.10.2016

Este contratante habla :

Arrendatario de confianza

Vales de vacaciones rechazados


Localizar el alojamiento

Información de la estación

Estación principal: Pralognan la Vanoise

Estación de distancia : centro de la ciudad
Distancia a los ascensores : cerca de
Más información : estación Pralognan la Vanoise

Estación secundaria: Courchevel Village 1550

Más información : estación Courchevel Village 1550

Zona(s) de esquí vinculada(s)


Dominio : Courchevel ( Courchevel La Tania , Courchevel 1850 , Courchevel Moriond 1650 , Courchevel Village 1550 , Courchevel Le Praz 1300 , Courchevel Saint Bon , )